30721 40th Ave S, Roy, WA 98580
Toggle Navigation
Images
Videos
Floor Plans
3D Tour
Map
30721 40th Ave S
Roy, WA 98580
Scroll to Content
Images
Slideshow
Photo Grid
Hide
Previous
Next
Show more
Videos
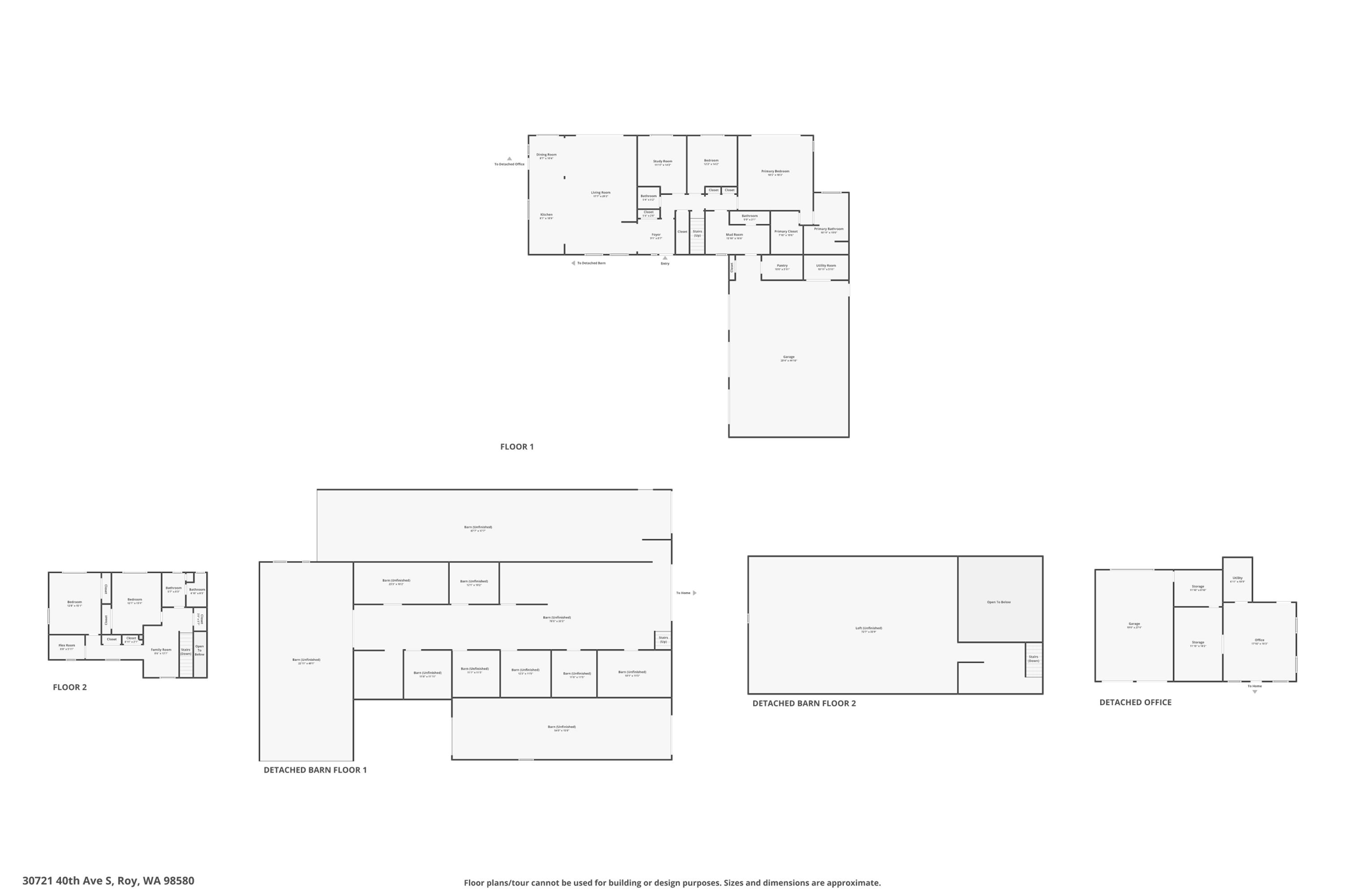
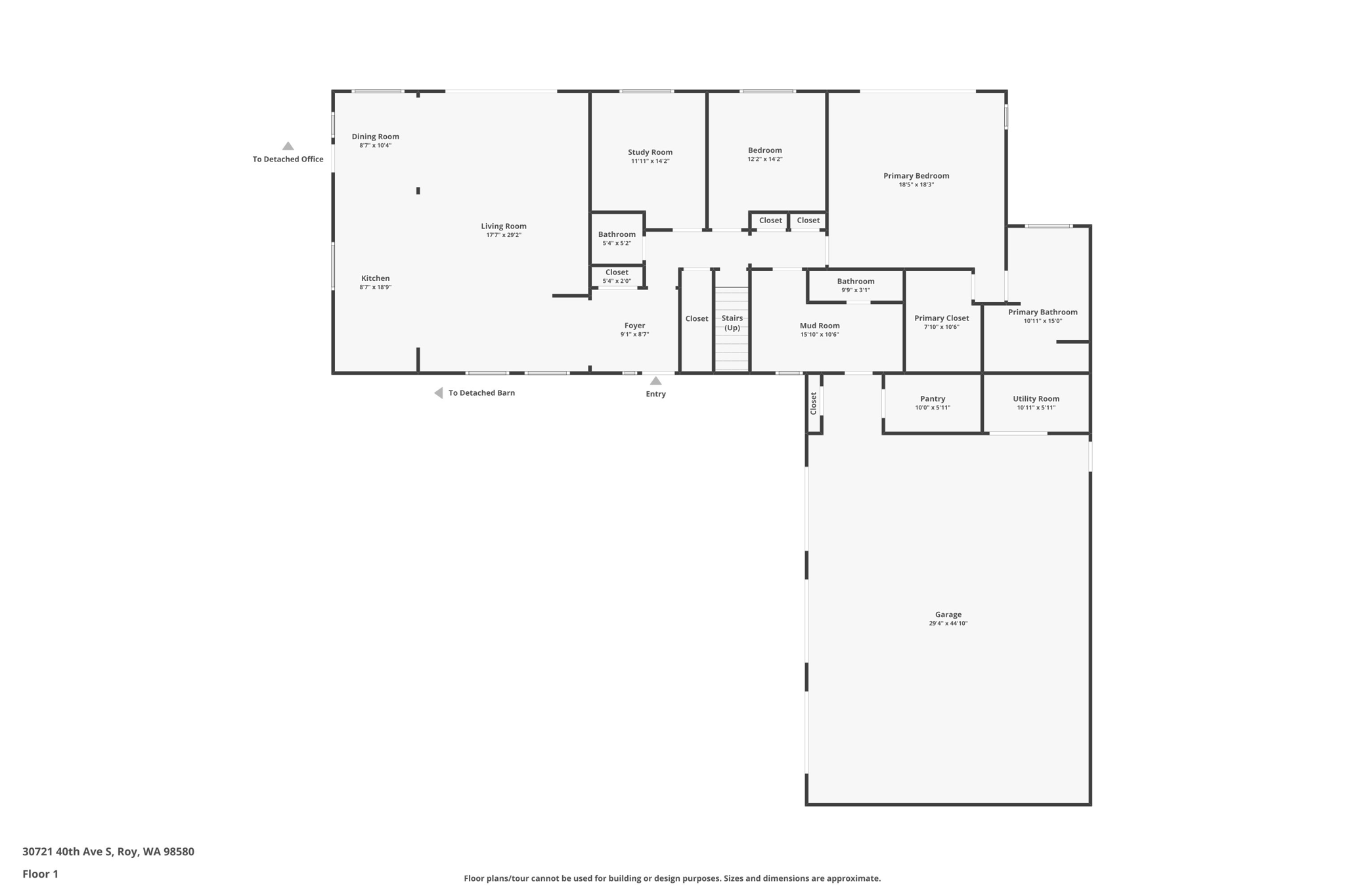
Floor Plans
Slideshow
Photo Grid
Hide
Previous
Next
3D Tour
360 air pano
Zillow 3D tour